Welcome to...

1416 12th St, Oakland, CA 94607

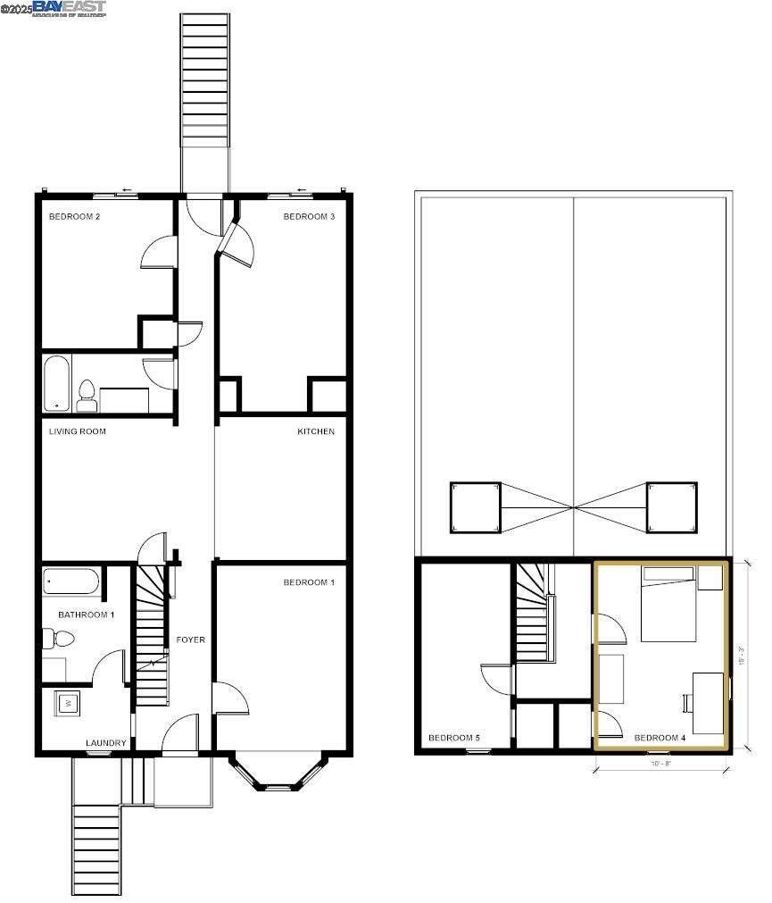
This distinctive Oakland tri-level combines vintage character with thoughtful modern updates, offering approximately 1,372 sq. ft. of finished living space plus the opportunity for a second living unit below, creating flexibility for an ADU, guest suite, or workspace—which, with the addition, could bring the home to a generous 2,235 sq. ft. Situated on a 3,080 sq. ft. lot in the vibrant East Bay, the home dates back to 1893 and retains its historic roots while showcasing improvements such as skylights, hardwood floors, new carpeting, updated lighting, and fresh paint. The primary living level (on the second floor) opens to a spacious front room with lofty ceilings and a dramatic bay window. An airy kitchen and dining area—both illuminated by skylights—feature granite counters, a full-height mosaic backsplash, and stainless steel appliances. This floor also includes three bedrooms, two full bathrooms and laundry with LG washer/dryer. Upstairs, a graceful banister leads to primary bedroom and additional bedroom/office filled with natural light, ideal for guests or a home office. The lower level offers a blank canvas for an ADU. Located in West Oakland, just five blocks from BART with easy freeway access. Large back yard. Floor plan in photos.

Property Details

5

Bedrooms

2

Bathrooms

1,372

Sq Ft

Property Inquiry

Image 1 Image 2 Image 3 Image 4