Welcome to...

3626 Norcross Ct, Evergreen, CA 95148

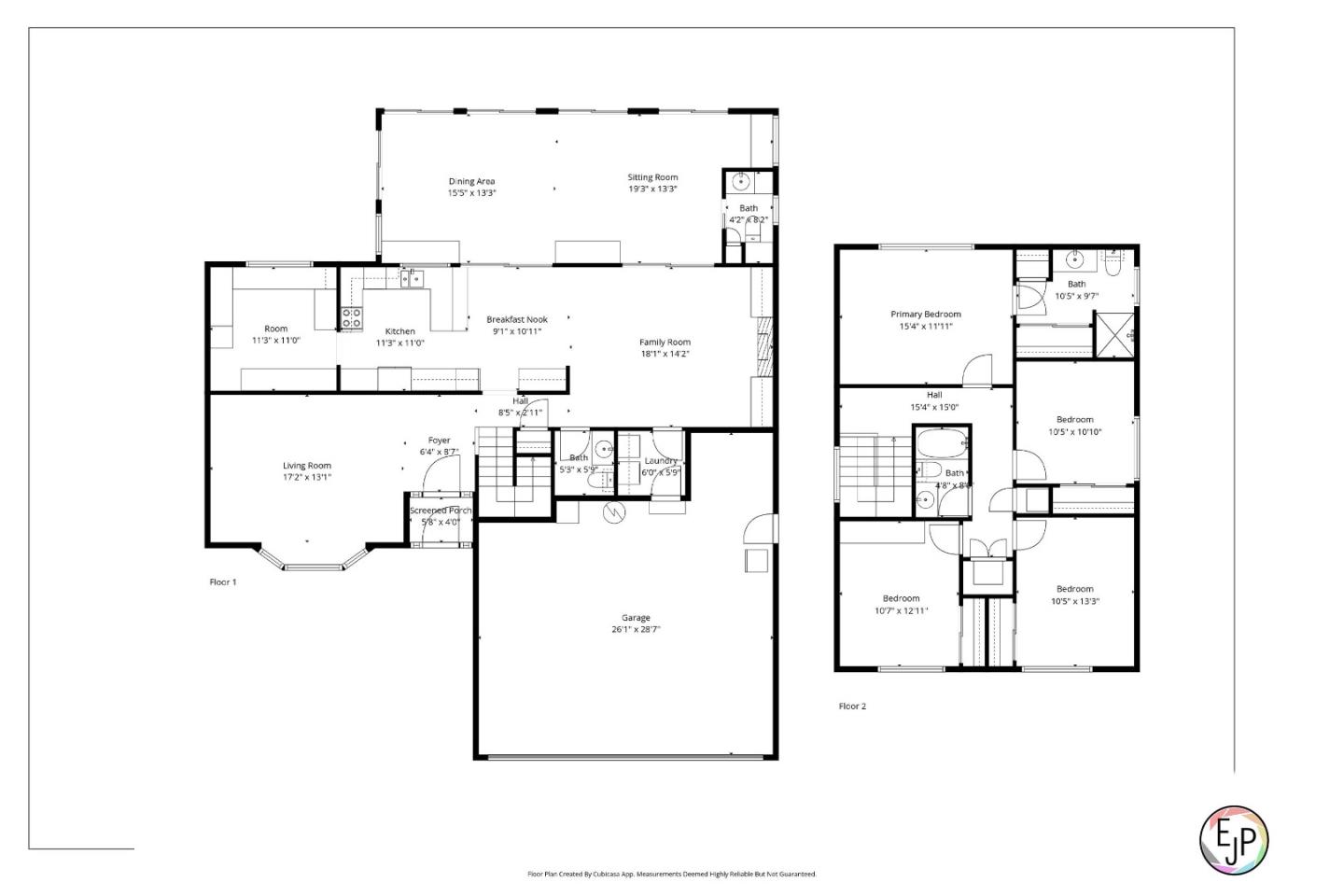
Welcome to your next home adventure at 3626 Norcross Court, San Jose! This charming property, cherished by its original owners, is nestled in a peaceful cul-de-sac. Offering 4 spacious bedrooms and 2.5 bathrooms, this home provides ample space for comfort and relaxation. Step inside to find beautiful hardwood floors that span the main level, leading you through a welcoming living space featuring built-in bookshelvesperfect for showcasing your favorite reads or collectibles. The 2,124 square feet of living space plus a delightful 400 sqft sunroom addition at the back of the house, an ideal spot for morning coffee or evening relaxation. The exterior is equally impressive with a 12,000 square foot lot that accommodates large gazebos equipped with fans, perfect for entertaining or simply enjoying the outdoors in comfort. With a durable 50-year composition roof, this home offers both style and longevity. Experience the perfect blend of comfort and charm at 3626 Norcross Court!

Property Details

4

Bedrooms

3

Bathrooms

2,124

Sq Ft

Property Inquiry

Image 1 Image 2 Image 3 Image 4